Чертежи и схемы сараев
Сарай — капитальное сооружение, поэтому чертеж является базовой основой для как расчета материалов, так и для дальнейшего строительства
При составлении важно учитывать кроме своих пожеланий размеры блоков, листов, мерных изделий, чтобы при возведении оставалось как можно меньше обрезков и отходов
Чертеж нужно составить в нескольких проекциях, желательно всех 4 фасадов, если есть какие-либо различия. Указывают размеры здания по осям, высоту, габариты проемы, толщину стен. Обозначают раскладку основных конструктивных элементов и другие технические подробности. Можно воспользоваться схемой из интернета, а потом детально ее проработать.
Планировка может быть совсем простой. Если под одной крышей будут помещения различного назначения, их нужно разграничить перегородками. Желательно устроить хотя бы одно окно
Особенно это важно для выращивания животных, так как солнечный свет благоприятно влияет на их поведение
Каким может быть?
При обустройстве сарая для дачи под машину и для отдыха нужно сразу определить, будет он сделан с двускатной или с односкатной крышей. Конструкции под одной скатной поверхностью невентилируемого типа отличаются наклоном кровли до 5 градусов. Вентилируемые варианты могут монтироваться под углом до 20 градусов. Стоит такое решение недорого, монтируется несложно. Ремонт тоже не составит труда.

Но гораздо чаще на участке размещают двускатный сарай. Его сложность и дороговизна оправдываются тем, что на крыше не будет накапливаться снег. Также можно будет обустроить чердак или даже мансарду. Иногда уклоны скатов делают неодинаковыми (это создаёт необычный эстетический эффект). Сарай для дров в частном доме может быть достаточно разного исполнения.

Для работы подходят и доски, и брус, и поддоны. Рекомендуется выбирать варианты с дровником частично открытого типа, который будет продуваться, но окажется неплохо защищён от попадания влаги и пара. Выбор расположения внутри или снаружи дома — дело вкуса. Что касается дополнительного места, то оно может отводиться как для автомобиля самого по себе, так и для техники, инвентаря, если планируется выполнять на месте обслуживание, ремонт транспорта.

Как выбрать сарай для дачи
Этап II. Подготовительные работы
Выбираем место для будущей постройки
Для облегчения работы можно сначала составить план-схему с обозначением мест будущих построек. Для строительства сарая многие хозяева выделяют участок подальше от парадной зоны, чтоб он был скрыт от любопытных глаз. Некоторые же придерживаются того мнения, что сарай нужно размещать поближе к дому, чтоб в любой момент иметь к нему доступ. С целью рационального использования территории для обустройства сарая выбирается мало освещенный солнцем участок, который считается наименее пригодным для выращивания культур и проведения других сельскохозяйственных работ.

Определяясь с местом расположения сарая спешить нежелательно. Ведь сарай, который будет служить не один десяток лет, должен дополнять, а не контрастировать с ландшафтом местности
При выборе места для размещения сарая следует ориентироваться на расположение других зон участка, а также на размеры возводимой конструкции и ее внешний вид.

С помощью отелочных работ можно даже неприглядную хижину преобразить в оригинальную дизайнерскую постройку, которая станет эффектным украшением участка
Какой вариант сарая выбрать для дачи
Видео как построить сарай
Обустройство любого загородного участка начинается с возведення сарая – постройки, необходимой для хранения стройматериалов, дров и прочего хозяйственного инвентаря. Построить сарай своими руками – несложная и вполне осуществимая задача, реализовать которую сможет любой хозяин, который хоть немного разбирается в строительстве. Поскольку сарай является не временным сооружением и представляет собой многофункциональную конструкцию, которую можно не только использовать для хранения нужных вещей, но и для содержания домашней живности, следует тщательно продумать место расположения будущей постройки.
Основные работы
Хозяйственные блоки устраиваются на частном дворе не очень далеко от домов и могут располагаться в один ряд. С баней из пеноблоков дело обстоит немного иначе, так как данное сооружение имеет повышенную огнеопасность. Ниже приводится инструкция, рассказывающая о кладке пенобетона.
Баня из пеноблоков своими руками: поэтапное строительство
Создание основания
В качестве базовой платформы может использоваться ленточный фундамент, обладающий также хорошими теплоизоляционными характеристиками. В связи с небольшой массой материала глубину заложения можно сократить до 50-60 сантиметров.
Траншеи следует проводить под внешними стенами и внутренними перегородками.
- Выполняется предварительная разметка, после чего за линией основания устанавливается обноска, позволяющая определить внутреннюю часть.
- Подготавливается траншея по конкретным размерам, а уже в нее засыпается песочный слой.
- Изготавливается деревянная опалубка, способная выдерживать успешно давление бетонной смеси. Также формируется арматурный каркас.
- Производится заливка раствора внутрь конструкции, при этом желательно осуществить работы за один раз.
Бетонная смесь в деревянной опалубке.
Возведение стен
Чтобы сформировать боковые плоскости строения без посторонней помощи, необходимо ознакомиться с особенностями кладки этого материала. Перед началом работ нужно проверить горизонтальность цокольной части, избежав тем самым лишних сложностей.
Это удобнее сделать с использованием нивелира или обычного водяного уровня.
- Производится тщательная гидроизоляция верхней части фундамента при помощи рубероида, пергамина или других материалов.
- В каждом углу устанавливаются элементы строго по уровню, чтобы обеспечить горизонтальность кладки пеноблоков.
- Между угловыми блоками натягивается шнур, помогающий выровнять первый ряд компонентов.
- Если в одну линию не может войти целое количество составных частей, то ножовкой отрезается нужный кусок.
- Закончив работы с первым рядом, приступают к его армированию. Таким образом, укладываются две полосы из металлических прутьев.
- Кладка остальных рядов осуществляется по той же схеме. Однако в процессе установки элементов используется резиновый молоток.
- На последнем этапе устраивается арматурный пояс под перекрытие. Применяются металлические куски толщиной 20 см.
Демонстрируется процесс резки материала.
Строительство односкатной крыши
При выборе материала для компонентов стропильной конструкции специалисты рекомендуют использовать хвойные породы древесины. Влажность элементов стропильной системы не должна превышать 15 процентов.
Для придания верхней части огнеупорных свойств желательно произвести обработку специальными составами.
- Перед сборкой крыши наружная сторона здания доводится до нужной высоты, обеспечивая расчетный уклон.
- На переднем и заднем торце фиксируется мауэрлат, предоставляющий возможность распределить нагрузку.
- Стропильные ноги устанавливаются с шагом 70-80 сантиметров. Свесы должны иметь ширину примерно полметра.
- Усиление каркаса выполняется путем инсталляции дополнительных стоек или подкосов.
- К балкам саморезами или гвоздями фиксируется обрешетка, причем доски располагаются в поперечном направлении.
- К элементам опорной конструкции крепятся листы кровельного покрытия и дополнительные детали.
Подробная схема односкатной крыши.
Установка дверной коробки
Первым делом тщательно подготавливается дверной проем, для чего проверяется вертикальность стены. Измеряется ширина, а также высота промежутка.
Должен оставаться зазор 10-15 мм.
- Открывается упаковка, а также устраняются крепежные элементы. Дверь устанавливается непосредственно в проем.
- Сама рама качественно фиксируется с использованием уровня. С внутренней стороны вбиваются деревянные клинья.
- С боковой стороны через специальные отверстия устанавливаются анкерные болты. Сверление осуществляется на глубину не менее 130 мм.
- Замок вставляется в отведенное для него место. Далее собирается дополнительная фурнитура.
Дверная коробка входной двери после монтажных работ.
Проекты
Масштабы строительства навесов с хозблоками зависят от размеров приусадебного участка и хозяйственной необходимости. На большой территории можно установить просторную мастерскую и навес для 2-3 машин. Для компактной зоны отдыха у бытовки с дачным инвентарем понадобится минимум места.
Навесы, относительно строения, могут занимать любое место – у входа, с тыльной стороны, нередко планируют боковой или угловой вариант. Следует помнить, что постройки не регистрируются и не облагаются налогом, если они не имеют мощного фундамента и укладываются в размеры до 50 кв. м.

Мастерская с навесом для 2 машин
Крупная постройка, занимающая 6х9 кв. м общей площади. Хозблок (3х6 кв. м) содержит две комнаты – генераторную и мастерскую. Навес (6х6 кв. м) расположен со стороны задней стены здания и рассчитан на обособленное парковочное место для автомобилей.

Навес с хозблоком и беседкой
Постройка занимает 10,5х5,6 кв. м общей площади и годится для большого земельного участка. Навес размером 5,5х4 кв. м для одной машины и беседка – 3х5,6 кв. м расположились с разных сторон хозблока (2х4 кв. м). Боковой вход в хозяйственную постройку позволяет быстро попасть в нее как со стороны беседки, так и с территории стоянки.
Самым распространенным материалом для возведения навесов является поликарбонат. В зависимости от вида, он способен пропускать свет от 80 до 90%. Некоторые поликарбонатные изделия задерживают ультрафиолет. Предлагаем ознакомиться с эскизами построек с применением этого материала:
- кровля навеса из профилированных труб одной стороной закреплена на крыше хозблока, второй – удерживается опорами;
- небольшая бытовка и стоянка для машин накрыта общим навесом, опирающимся на забор и металлические сваи;
- комплекс хозяйственных построек под общей поликарбонатной крышей.
Рассматривая варианты готовых строений, можно отметить для себя много интересного. Разобьём их на несколько категорий – затененная площадка рядом с хозблоком, предназначена:
- для автомобилей;
- для отдыха;
- для различных нужд.

Хозпостройка с автомобильным навесом
- Комбинированное строение с кровлей для машины, выстроенное из шлакоблока и узкой доски.
- Стоянка для авто и небольшая бытовка собрана из одинаковых металлических листов.
- Надежная деревянная постройка с двускатной крышей.
- Хозблок и навес построен из профнастила, закрепленного на металлическом каркасе.

Зона для отдыха
Красивая и уютная территория отдыха, выполненная из древесины.

Миниатюрная обеденная зона рядом с таким же компактным хозблоком находятся под одной кровлей.

Натяжная текстильная крыша для перголы, закрепленная на стене хозпостройки.

Красивый реечный навес и хозблок не соединены друг с другом, но выступают единым ансамблем.

Хозблок с навесом для различных нужд
Место под навесом отлично защищено от плохих погодных условий, так как находится между гаражом и сараем. Весь комплекс построек объединен общей крышей и единой задней стенкой.
Необходимые инструменты и материалы
Для постройки навеса для автомобиля не потребуется большое количество специальных инструментов. Можно обойтись и обычной пилой, молотком и несколькими емкостями.
Однако, для быстрой постройки конструкции, рекомендуется подготовить следующие инструменты:
- циркулярная пила;
- веревка и колья;
- лопата;
- строительный уровень;
- любая емкость для воды;
- бетономешалка;
- шуруповерт либо отвертка со сменными битками;
- ключи.

Материалы для постройки включают:
- цемент, песок и гравий;
- покрытие крыши на выбор – шифер, черепица, стеклоизол, металлические листы;
- строительные уголки (минимум 8, если строить без дополнительных укрепляющих балок);
- саморезы, болты, гайки, гвозди;
- строительный брус необходимого размера в нужном количестве.

2 Какие этапы предполагает постройка сарая своими руками
Перед тем как построить сарай своими руками, необходимо сделать небольшой проект. Естественно, он не будет таким грандиозным, как для жилого дома со всем инженерным расчетами. Простой чертеж, на котором должны быть обозначены размеры фундамента, конструкция крыши и самого сооружения, а также прочие необходимые детали. Кроме всего, имея на руках чертежи проще подсчитать нужное количество материалов, а все строительство и устройство необходимых коммуникаций будет происходить легче и быстрее.
Делается облегченным, учитывая его небольшой вес. Это может быть как ленточная конструкция с небольшим заглублением, так и столбчатая. При этом для устройства столбчатого фундамента могут использоваться следующие материалы:
- красный кирпич;
- бетонные блоки;
- асбестоцементные трубы.

Сделать столбики для фундамента можно из бетона, предварительно установив опалубку и арматурный каркас. Но в этом случае нужно дождаться полного схватывания бетонной смеси. На это уйдет 28 суток, только по истечении этого времени бетон набирает полную прочность.

Следующим этапом строительства буде возведение стен. Но перед тем как сделать сарай своими руками, нужно учесть, что при устройстве фундамента необходимо предусмотреть закладные детали в местах крепления будущего каркаса сооружения, если выбран облегченный вариант – из досок. Хотя кроме досок в каркасной постройке могут применяться различные щитовые конструкции с утеплителем внутри.

После того как стены будут готовы, приходит черед крыши, которая может быть двускатной, односкатной или четырехскатной. своими руками дает возможность на любой стадии строительства вносить коррективы, выбирать более экономичный вариант.
Прежде чем начать основные работы по строительству, необходимо выбрать место и произвести разметку под фундамент. Место под сарай должно находиться неподалеку от дома.
Изнутри сарай можно разделить на два хозяйственных блока — например, на мастерскую и место под хранение дров. В зависимости от предназначения помещения, делаются окна.
Что сначала?
Ориентируемся на месте, разговариваем с соседями. Цель – найти наилучшее место для сарая: чтобы был не очень далеко, но и не торчал перед глазами и укладывался в санитарные нормы по расстояниям до источников водоснабжения и др. подверженных загрязнению объектов (жилые дома, посадки сельхозкультур, особенно корнеплодов);
Вдруг по п. 1 ясности нет, строим сарай либо передвижной, либо времянку из дешевого бросового материала. Тем не менее, сарай на даче из горбыля или досок б/у возможно построить достаточно долговечным, недорого и несложно облагородить до придания ему вполне приглядного вида, см. далее;
Если с местом под сарай определились сразу, выбираем тип верхнего строения с учетом возможности обзаведения домашними животными;
Подбираем к «коробке» крышу;
Определяем тип фундамента;
Проектируем сарай с привязкой на местности
Последнее особо важно, т.к. надзорные органы с источниками загрязнений не церемонятся;
Сводим (подбиваем) смету на строительство и оформление;
Возможно, корректируем проект, если сарай в бюджет не вписывается;
Также, возможно, рассматриваем вариант самостроя с последующим узакониванием. Если сарай заведомо укладывается в СанПиНы (Санитарные Правила и Нормы), то так выйдет дешевле и проще, чем строить изначально по проекту;
Закупаем материалы, строим.
Если сарай заведомо укладывается в СанПиНы (Санитарные Правила и Нормы), то так выйдет дешевле и проще, чем строить изначально по проекту;
Закупаем материалы, строим.
Как быть с проектом?
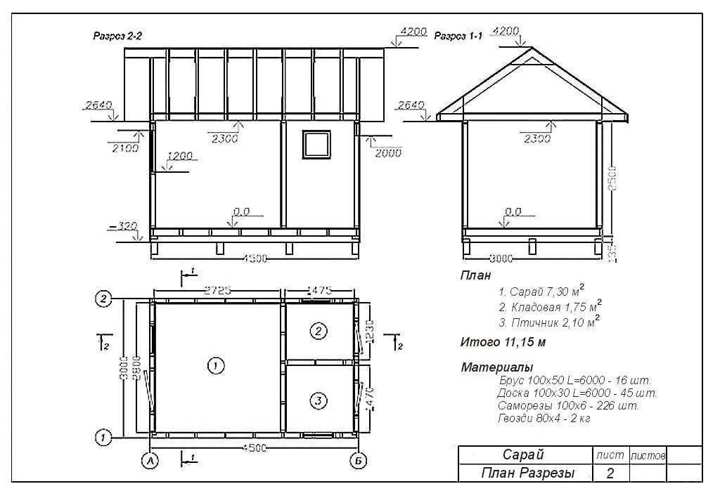
Сарай – легкое быстровозводимое не отапливаемое нежилое строение, из чего следуют важные облегчающие дело следствия. О них для строительства речь впереди, а пока нужно знать, что при оформлении/узаконивании наибольших придирок и сложностей следует ожидать по привязке на местности в соответствии с СанПиНами. Собственно проект сарая должен включать в себя листы с фасадами, план с разрезами, см. след 2 рис. и план-схему фундамента со спецификацией материалов на него, как на рис. с план-разрезами.

Лист фасадов из проекта сарая
Как правило, бесплатные проекты сараев из рунета утверждаются безо всякого и потом никто никогда не проверяет досконально, что там на самом деле построено. Похоже на проект, и ладно. Отклонения от проекта в строительстве допустимы, а в «мелкострое» для себя и без согласования можно обойтись. Но вот план-схему расположения на участке изучают очень внимательно, как и планы соседских участков и их согласия на строительство. Так что позаботьтесь собрать эти бумаги заранее, они действительны 3 года.

Лист план-разрезов из проекта сарая
Возможно, въедливый чинуша потребует еще лист с конструкцией каркаса, т.к. нежилое-то оно нежилое, но люди туда заходят. На такой случай для образца – чертежи на рис. Кстати, это совсем неплохая сарайка для 6-соточной дачи. На крайний случай там и спать можно, улегшись по диагонали.

Каркас мини-сарая для маленького участка
О временных сараях
Добротный деревянный сарай без фундамента весит до тонны; с односкатной крышей и если строить аккуратно, но не по-купечески, можно уложиться в полтонны. Передвигать его на катках по слегам, см. рис., подваживая ломом, можно вдвоем. Чтобы поднять и поставить на основание с помощью лямок (веревок), хватит 10-12 крепких мужиков. Хотя как знать, не обойдется ли последующее угощение для этой оравы дороже аренды автокрана…

Передвижение сарая на катках
К чему это, кроме того, что спервоначала строить можно где угодно? К тому, что в таком случае проект нужен не более, чем для собачьей будки, а для нее он не нужен вовсе. Если год простоит, то потом, на фундаменте, узаконят, лишь бы в СанПиНы вписывался.
Однако тут встает вопрос уже для себя: а как на фундамент ставить? Надо бы на анкеры посадить, но не разбирать же постройку, чтобы сквозь венец их протолкнуть? Есть способ, о нем см. далее.
Размеры и функционал
Функционал постройки очень важен для составления чертежей и грамотного расчета навеса. Рассмотрим типовые проекты разных видов конструкций.
Козырьки над входной дверью
Расчет консольных козырьков проводится, исходя из габаритов крыльца. По нормативам, верхняя площадка должна быть больше ширины двери в полтора раза, средняя ширина двери – 900 мм, делаем расчет: 900*1,5 = 1350 мм – оптимальная глубина крыши над входом. Ширина навеса зависит от ширины ступеней + 300 мм с каждого бока.
Чертеж козырька над входной дверью
Консольно-опорные навесы обычно устраиваются по площади всего крыльца и закрывают ступени. Глубина крыши рассчитывается, исходя из количества ступеней, средняя глубина которых по СНиП 250-320 мм, плюс верхняя площадка. Расчет ширины навеса над крыльцом регламентируется стандартной шириной ступеней – 800-1200 мм + 300 мм с каждой стороны.
Рассчитываем размеры:
- Стандартного консольного козырька – 900-1350 мм на 1400-1800 мм.
- Консольно-опорного навеса над крыльцом, пример расчета на 3 ступени и площадку: глубина (900/1350 + 3*250/320) = 1650 – 2410 мм, ширина 800/1200 + 300 + 300 = 1400-1500 мм.
Чертеж балочно-опорной постройки с ассиметричной крышей
Веранды и террасы – чертеж и расчет
Веранды и террасы располагают вдоль одной из стен дома, поэтому здесь актуальны балочно-опорные и консольно-опорные конструкции. Минимальная глубина – 1200 мм, оптимальная – 2000 мм, как раз на расстоянии установки опорного столба.
Чертеж пристраеваемого навеса с опорной балкой
Расчет крыши по перпендикуляру 2000+300 мм, но плоская кровля целесообразна исключительно для районов с минимальным количеством осадков, в остальных регионах рекомендуется сделать уклон 12-30о. Чтобы рассчитать глубину крыши навеса потребуется теорема Пифагора: с2 = а2 + в2.
Пример расчета:
Если угол уклона = 30о, прилегающий к нему катет (глубина крыши навеса по перпендикуляру) – 2300 мм, второй угол 60о. Возьмем 2 катет за Х, он лежит напротив угла в 30о, и по теореме равен половине гипотенузы, отсюда гипотенуза равна 2*Х, подставляем данные в формулу:
(2*Х)2 = 23002 + Х2
4*Х2 = 5290000 + Х2
4*Х2 — Х2 = 5290000
Х2(4-1) = 5290000
3*Х2 = 5290000
Х2 = 5290000 : 3
Х2 = 1763333, (3)
Х = √1763333, (3) = 1327 мм – катет, который будет прилегать к стене дома.
Расчет гипотенузы (длины крыши с уклоном):
С2 = 13272 + 23002 = 1763333 + 5290000 = 7053333
С = √7053333 = 2656 мм, проверяем: катет, лежащий против угла 30о равен половине гипотенузы = 1327*2 = 2654, следовательно, расчет верен.
Отсюда рассчитываем общую высоту навеса: 2000-2400 мм – это минимальная эргономичная высота, рассчитываем с учетом наклона: 2000/2400 + 1327 = 3327/3737 мм – высота стены навеса возле дома.
Как построить отдельно стоящий односкатный навес из металлопрофиля своими руками, чертежи каркаса и фермы
Стоянки для автомобилей – стандартный расчет и чертеж
Стоянки для автомобилей устраивают как отдельно стоящие постройки либо балочно (консольно)-опорного типа. Если планируется изготавливать навес для машины своими руками, чертежи делаются с учетом класса автомобиля. Габариты стоянки по ширине рассчитываются: размер автомобиля + 1,0 м с каждого бока, на 2 машины учитывается + 0,8 м между ними.
Чертеж небольшой конструкции для стоянки или хозблока
Пример расчета навеса для машины среднего класса, ширина – 1600 -1750 мм, длина – 4200-4500 мм:
1600 /1750 + 1000 + 1000 = 3600/3750 мм – ширина навеса;
4200/4500 + 300 +300 = 4800/5100 мм – эргономичная длина, чтобы осадки не заливали площадку.
Расчет ширины навеса на две машины:
3600/3750 + 800 = 4400/4550 мм.
Зачастую, для авто строится арочный навес из поликарбоната своими руками, чертежи удобной конструкции на свайном фундаменте представлены ниже.
Пример, как построить навес для автомобиля своими руками, чертеж арочной металлоконструкции с поликарбонатной крышей
Беседки
Навесы для отдыха обычно устраивают в глубине участка, это отдельно стоящие конструкции на свайном, столбчатом, ленточном, плитном фундаменте. Выбор основания зависит от габаритов строения и характера грунта, это необходимо отразить в чертежах.
Средний размер беседки 3*4, 4*4, 4*6 м. Чтобы самостоятельно рассчитать конструкцию и сделать чертеж, следует учесть параметры:
- Для комфортного отдыха 1 человека необходимо 1,6-2 м2 площади по полу.
- Если под навесом располагается мангал, то между печью и зоной отдыха рекомендуется оставить свободную площадку шириной 1000-1500 мм.
- Удобная ширина сидушки 400-450 мм.
- Эргономичный размер стола 800/1200 на 1200/2400 мм, индивидуальный расчет делается с учетом 600-800 мм на 1 человека.
Чертеж отдельно стоящего навеса-беседки из дерева
Изготовление стационарного навеса
Советы/рекомендации
Перед заливкой несущей конструкции необходимо приготовить добротный цепкий раствор из смеси цемента, воды, песка и гравия. Сделать это грамотно помогут следующие правила:
При покупке сухого цемента либо строительной смеси обязательно следует обратить внимание на дату производства. Здесь сгодится обычный портландцемент.
Для экономии цемента стоит выбрать гравий разного диаметра с крупными и мелкими камешками. В этом случае мелкий гравий послужит связующим звеном для крупного и цемента понадобится меньше.
Щебень не должен иметь в составе мусор и различные примеси.
Воду так же следует использовать чистую, лучше всего питьевую.
Песок должен быть без примесей глины и ила.
Классический рецепт строительного раствора: 3 части песка, 5 частей щебня, 1 часть цемента – все залить водой, перемешать до получения густой однородной массы.
В этом случае мелкий гравий послужит связующим звеном для крупного и цемента понадобится меньше.
Щебень не должен иметь в составе мусор и различные примеси.
Воду так же следует использовать чистую, лучше всего питьевую.
Песок должен быть без примесей глины и ила.
Классический рецепт строительного раствора: 3 части песка, 5 частей щебня, 1 часть цемента – все залить водой, перемешать до получения густой однородной массы.
Каким может быть?
При обустройстве сарая для дачи под машину и для отдыха нужно сразу определить, будет он сделан с двускатной или с односкатной крышей. Конструкции под одной скатной поверхностью невентилируемого типа отличаются наклоном кровли до 5 градусов. Вентилируемые варианты могут монтироваться под углом до 20 градусов. Стоит такое решение недорого, монтируется несложно. Ремонт тоже не составит труда.

Но гораздо чаще на участке размещают двускатный сарай. Его сложность и дороговизна оправдываются тем, что на крыше не будет накапливаться снег. Также можно будет обустроить чердак или даже мансарду. Иногда уклоны скатов делают неодинаковыми (это создаёт необычный эстетический эффект). Сарай для дров в частном доме может быть достаточно разного исполнения.

Для работы подходят и доски, и брус, и поддоны. Рекомендуется выбирать варианты с дровником частично открытого типа, который будет продуваться, но окажется неплохо защищён от попадания влаги и пара. Выбор расположения внутри или снаружи дома — дело вкуса. Что касается дополнительного места, то оно может отводиться как для автомобиля самого по себе, так и для техники, инвентаря, если планируется выполнять на месте обслуживание, ремонт транспорта.

Строительство
Расчет материала на сарай размером 3х6 метра
Сначала нужно составить план или схему постройки, что поможет более точно рассчитать количество необходимого материала. Правильно составленный план строения позволит учесть все нюансы строительства, чтобы в процессе работы не пришлось докупать материалы
Приобретая брус и доски, уделите внимание их влажности, которая не должна быть более 22%. Также на древесине не может быть крупных сучков, синевы, следов работы жучка-древоточца. Для изготовления каркасного сарая понадобится устройство следующих конструкций:
Для изготовления каркасного сарая понадобится устройство следующих конструкций:
- Обвязка нижняя и верхняя. Для этого нужен брус сечением 100 на 100 мм. Шесть штук 6-метровых и восемь брусьев по 3 м.
- Настил пола производится из досок сечением 40х150 мм, потребуется, минимум, 20 штук, при необходимости можно добавить. Для чистового покрытия лучше использовать OSB плиты.
- Вертикальные опоры – здесь нужен будет брус сечением 100х100 мм, в количестве 11 штук по 2,5 метра длиной каждый, два из них для дверного проема.

Вертикальные опоры каркасного сарая
Для создания уклона односкатной крыши используется один из двух возможных методов. Если вертикальные стойки каркаса сделаны одинаковой длины, то по одной стороне периметра постройки делают их наращивание брусками сечением 50х50 мм, которых потребуется 4 штуки. По другой методике при установке вертикальных стоек с одной стороны строения следует установить или более высокие брусья или чуть короче остальных. При использовании любого варианта уклон кровли будет обеспечен.
Для изготовления стропил потребуется доска сечением 50х100 мм в количестве 4 штук длиной по 4 метра каждая, с учетом кровельных свесов. Обрешетка выполняется из доски сечением 22х100мм, которой потребуется, примерно, полкуба. Черновой потолок делается из листов многослойной фанеры, ДСП, ДВП или OSB плит. Ветровая доска устраивается из пиломатериала обрезного типа сечением 25х100 мм. Достаточно будет 6 досок по 3 метра.

Доски сечением 50х100 мм
От толщины бруса зависит тип крепления: соединение в лапу (в полдерева) можно фиксировать гвоздями. Соединение «стык в стык» производится стальными уголками и планками. Также в работе потребуются саморезы, шурупы, Г-образные металлические пластины для крепления бруса по углам. Основным крепежным элементом будут гвозди различных размеров. Подбираются они такой длины, чтобы при вбивании в две соединяемых доски с наружной стороны, острие должно выходить на 1,5–2 см с обратной стороны. Такое соединение будет надежнее.
Все деревянные элементы постройки обрабатываются антисептиком, продляющим срок их службы. Лучше всего наносить защитный состав в два слоя.
Навес-солнечная электростанция
Интересные навесы под машину были разработаны немецкой компанией БМВ. Согласно разработанног проекта, их козырек выполняется из солнечных панелей и служит для подзарядки аккумуляторной батареи автомобиля.
Сооружение оказалось оригинальным, стильным и дорогим. Притом, не просто дорогим, а практически не доступным. Позволить себе такой навес электростанцию смогли только владельцы яхт или те, у которых бы на них достало денег.
Но голь на выдумку хитра! Легкий двутавровый каркас, кровля из бюджетного профнастила и опора под солнечные панели готова. Правда потом еще придется вложиться в сами батареи и сопутствующее им оборудование, но эти траты несравнимы с покупкой брендового навеса.
Хочется также добавить, что навес-солнечная электростанция самоокупаемый проект, ведь с 24 июля 2017 года в России утвержден план «План мероприятий по стимулированию развития генерирующих объектов на основе возобновляемых источников энергии с установленной мощностью до 15 кВт». То есть излишки «производства» всегда можно продать, притом по хорошей цене.





























