Двухэтажные бани
Вместительные и шикарные проекты бань на два этажа поражают своим внешним видом, продуманной планировкой и возможностью использования двухэтажной бани как полноценного дома. Чтобы не возводить два фундамента на несколько домиков, лучше сделать один фундамент на баню-домик на 2 этажа. Как правило, чердачное помещение используется хозяевами по-разному, а на первом этаже находится парилка, котельная, моечная комната, иногда бассейн или ванная.
Далее представлен проект подобной бани, где комната отдыха на втором этаже, а гостиная на первом. Целый этаж оснащают или тренажерным залом, бильярдной, крытым бассейном. Все зависит от бюджета постройки.
Особенности печи
Чем больше объем помещения, тем больше потребуется мощности для его обогрева. Время максимального нагрева воздуха в помещении зависят от возможностей печки. Печь каменная на дровах является классическим вариантом. На сегодня не менее распространены электрические агрегаты. Железные печи могут быть печи на жидком топливе, на газе.
От работы печи, скорости достижения оптимальной мощности и надо отталкиваться, определяя оптимальную площадь парилки. Слишком большое помещение придется долго доводить до нужной температуры.
Если печь железная, надо обязательно установить перегородку, защищающую людей от нежелательных соприкосновений с раскаленным металлом. Печи устанавливают на расстоянии 50-100см от стен парной, тогда соблюдается пожарная безопасность, и помещение нагревается быстрее и качественнее.
Важно понимать, что финская сауна достигает пика эффективности при температуре 100°C, в русской бане париться можно при 50°C.
К сведению. Желательно конечную мощность кирпичной дровяной печи увеличить на 10-15% от той, на которую она была рассчитана изначально.
Электрическое отопительное оборудование должно выдерживать нагрузку на 20-25% больше от рекомендуемой мощности, чтобы возможные скачки напряжения не смогли помешать процессу обогрева помещения.
Предбанник или комната отдыха
Во время строения предбанника или зоны отдыха требуется учесть, что эта комната будет создавать воздушное препятствие сдерживающее холодный воздух с улицы и не допускающей его в душевую
Чтобы предбанник выполнял свою задачу на 100%, важно еще на стадии планировки учитывать утепление стен. Не стоит игнорировать и недооценивать ее
Предбанник играет довольно важную роль:
- он сохраняет тепло во всем помещении бани;
- в нем можно переодеться и отдохнуть после парной, попить чая с семьей и пообщаться с друзьями.
Самым идеальным решением при планировании комнаты отдыха будет ее размер до 3,5 метров. При этом можно отгородить предбанник от самого входа в баню дополнительной дверью. Это поможет большему сохранению тепла в помещении и будет еще одной преградой для холодного воздуха с улицы. При проектировании стоит учесть, что парилка обязательно должна иметь одну общую стену с комнатой отдыха. В ней и будет установлена печь, чтобы обогревать сразу два пространства.
При строительстве нужно следовать рекомендациям:
- Отдельно проработать количество и расположение скамеек для отдыха.
- Чтобы свести к минимуму любые теплопотери, нужно сделать двойное утепление стен.
- В бане обязательно должно быть, как минимум одно окно и конечно заранее стоит продумать искусственное освещение.
Бани 3 на 4: фото, проекты, интерьер
Русская
В русской бане, как правило, средняя температура достигает 45-70 °С. В связи с этим пар конденсирует и оседает на теле, благодаря чему оно очищается от разного типа загрязнений. Из-за горячего влажного воздуха происходит прогрев всего тела и организма в целом.

Русская парная по-черному
Конструкция состоит из трех основных частей:
- предбанник – может быть холодного типа и предназначаться для раздевания и одевания, размещения одежды. Теплый предбанник предназначен для проведения свободного времени и общения. В первом случае оборудован только вешалками, полочками и шкафчиками, во втором – дополнительно может быть установлен стол, стулья, диваны, шкафчики для хранения посуды, предназначенной для чаепития. В отдельных случаях устанавливаются телевизоры, а также другая техника;
- парная – здесь происходит основной процесс паровой обработки тела. Она самая сложная по конструкции, и в обязательном порядке там должна быть печь, которая прогревает камни, которые впоследствии обдаются жидкостью и образуют пар. Для удобного размещения посетителей обязательно устанавливаются лежаки, или, как их называют по-другому, полки;
- помывочная – предназначена для купания с применением химических средств личной гигиены, поэтому там располагаются лавочки для размещения тазов и ведер, но в современных условиях такие помещения обустраивают ванной или душевой кабиной. Также там должны быть шкафчики и полочки для размещения емкостей с мылом, гелями, шампунем и другими средствами.

Расчет необходимой площади
1 4




Популярные проекты домиков с баней для гостей
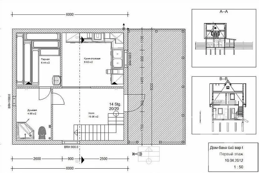
Проект небольшого гостевого дома 6х6 подойдет для возведения на небольшом дачном участкеИсточник s-sauna.com
Очень компактный, но при этом вместительный гостевой дом с баней и мансардным этажом. Несмотря на скромные размеры, помимо обязательных парной и душевой здесь есть все необходимые помещения для полноценного отдыха: холл, кухня-столовая и спальни. Вместо крыльца на входе расположена большая открытая терраса, на которой можно провести время на свежем воздухе.
Дом 7,1 на 6,9 м с террасой под крышейИсточник prefer.ru.net
Планировка второго этажа дома баниИсточник anapasunsity.ru
Несмотря на бо́льший периметр постройки, полезная площадь этого гостевого домика ограничена размерами 5,5 на 5,5 метра не считая террасы. Даже таких размеров вполне достаточно для временного или постоянного проживания небольшой семьей или периодическими посещениями дружеской компании.
Угловой дом с парной – еще одно необычное решение с возможностью сэкономить пространствоИсточник dom-usadba.com.ua
Угловой одноэтажный гостевой домик с баней – это интересное решение для небольшого участка. Здесь есть все необходимое для отдыха, но переночевать, при необходимости, получится, только разместившись на диване в комнате отдыха – отдельных спален в домике не предусмотрено.
Выбор проекта подходящей бани с комнатами для жилья
При подборе проекта в первую очередь учитывают, круглый год будет функционировать баня или только в летний сезон. В первом случае придется озаботиться эффективной системой отопления, качественной теплоизоляцией помещений. Такая банька должна быть комфортной для проживания на постоянной основе как минимум пары человек.
В качестве дачного домика можно выстроить баню одноэтажную с жилой комнатой по проекту из клееного бруса. Она хороша для летнего отдыха.
Но и для проживания круглый год можно найти проект, где одна комната либо две будут отделены стеной от банного отсека. Минус такой одноэтажной бани заключается в том, что нужно будет потратиться на гидроизоляцию и теплозащиту разделяющей стенки. Кроме того, такой дом «съест» много «квадратов» на участке. За счет компактной планировки с санузлом можно удовлетворить потребности, которые испытывает среднестатистическая семья в загородном отдыхе.
Специалисты считают, что лучше построить не одноэтажное, а двухэтажное здание либо предпочесть проект с мансардой. Первый этаж отводится под банные помещения, а наверху будут 1–2 спальни. Помимо комнат для жилья, многие проекты включают комфортную террасу, веранду, уютный балкон.
Предлагаем вам скачать несколько бесплатных проектов жилых бань, которые вы также могли бы найти в открытом доступе в Интернете.
Требования к моечной комнате
Функциональное наполнение моечной комнаты, то есть наличие емкостей для воды, душевой кабинки или целого бассейна, определяется на стадии разработки проекта.
При этом для каждого из вариантов будут предусмотрены свои нормативы размеров. Если говорить о бане для четырех человек, в которой моечная комната оснащена только резервуарами с водой, минимальный размер такого помещения составит 200×210 см.
При этом печка устанавливается таким образом, чтобы ее каменка находилась в парилке, а топка с баком для горячей воды – в моечном отделении. Мощность печи должна быть достаточной, чтобы полноценно обогреть парилку и обеспечить парильщиков горячей водой в полной мере. Например, небольшая металлическая печь с каменкой способна прогреть помещение объемом в 18 м3, а также нагреть около 70 литров воды.

Если только речь не идет о совмещенной парилке с мойкой – отделять эти помещения друг от друга в таком случае должна глухая стенка с дверью.
Вполне приемлемо в моечной комнате врезать окно. Размещать его следует не ниже 1,4 метров от пола. Желательно устраивать окна в баню не напротив входной двери и не делать их слишком большими – достаточно 50×70 см.
Дверное полотно для помывочной делают стандартным – 180×80 см, а вот порог желательно приподнять, чтобы избежать сквозняков.
При наличии дополнительных средств мойку можно оборудовать душевой кабинкой. Если выбрать достаточно компактную модель, то она займет порядка 90×90 см.
Итоги
Таким образом, учитывая все указанные показатели, можно утверждать, что стандартный размер бани для четверых человек при наличии трех отдельных комнат, будет составлять от 360×380 см. Если же появится необходимость в совмещении парилки с моечным отделением, размеры такой бани должны составлять как минимум 210×400 см.
Плюсы проектов бань с кухней
Баня с кухней, а также проект её имеют множество плюсов, которые и обуславливают высокую популярность такого типа строения среди россиян. Первым положительным моментом строительства такого здания является то обстоятельство, что вы выносите, таким образом, за жилую зону те помещения, в которых образуются неприятные запахи, генерируются большие объёмы сточных вод, а также выполняются хозяйственно-бытовые работы.
Второй плюс – это возможность экономии земли на участке. Дело в том, что дачные участки в России обычно не превышают шесть6 соток, и если возводить строения на них отдельно, вся площадь участка будет занята. Используя вариант совмещённого здания, можно значительно сэкономить землю, а сэкономленные площади использовать в других целях. Если же вам понадобиться расширить площадь строения, вы всегда сможете выбрать проект бани с летней кухней.
Третий плюс – экономия на строительных материалах и подведении инженерных коммуникаций. Так, строя баню и кухню в одном здании, вы сможете сэкономить до 20% сумм, отпущенных на строительство. При этом соблюдать правила противопожарной безопасности и строительные нормы и правила при совмещённом строительстве значительно проще
Это также важно, так как позволяет избежать впоследствии крупных штрафов со стороны контрольно-надзорных органов
И ещё одним плюсом совмещения бани и кухни является тот факт, что проекты совмещённых зданий стоят значительно дешевле отдельно стоящих. Связанно это с тем, что далеко не всегда домовладельцы, у которых имеются в собственности земельные участки большой площади, возводят на них совмещённые здания, предпочитая строить отдельно стоящие здания.
Кирпичная баня
Популярные проекты домиков с баней для гостей

Проект небольшого гостевого дома 6х6 подойдет для возведения на небольшом дачном участкеИсточник s-sauna.com
Очень компактный, но при этом вместительный гостевой дом с баней и мансардным этажом. Несмотря на скромные размеры, помимо обязательных парной и душевой здесь есть все необходимые помещения для полноценного отдыха: холл, кухня-столовая и спальни. Вместо крыльца на входе расположена большая открытая терраса, на которой можно провести время на свежем воздухе.

Дом 7,1 на 6,9 м с террасой под крышейИсточник prefer.ru.net

Планировка второго этажа дома баниИсточник anapasunsity.ru
Несмотря на бо́льший периметр постройки, полезная площадь этого гостевого домика ограничена размерами 5,5 на 5,5 метра не считая террасы. Даже таких размеров вполне достаточно для временного или постоянного проживания небольшой семьей или периодическими посещениями дружеской компании.

Угловой дом с парной – еще одно необычное решение с возможностью сэкономить пространствоИсточник dom-usadba.com.ua
Угловой одноэтажный гостевой домик с баней – это интересное решение для небольшого участка. Здесь есть все необходимое для отдыха, но переночевать, при необходимости, получится, только разместившись на диване в комнате отдыха – отдельных спален в домике не предусмотрено.
Размещение совмещённой бани на участке
Ещё одним аспектом выбора проекта для бани является определение места её расположения на земельном участке. При этом необходимо учитывать то обстоятельство, что расположение под одной крышей нескольких разнородных зданий требует соответствующей организации на земельном участке. Так проект бани с кухней и комнатой отдыха требует наличия дополнительного пространства перед зданием для организации зоны отдыха, а баню-гараж необходимо будет строить недалеко от выезда на улицу.
Кроме того, строительные нормы и правила устанавливают особенные требования к размещению бани в зависимости от того, на каком расстоянии она находится от других строений. К примеру, от жилого здания её можно возвести не ближе 5 метров. Это тоже стоит учитывать при совместном строительстве, так как, например, не всем домохозяйкам понравится то обстоятельство, что для готовки пищи им придётся ходить в достаточно удалённое от жилого дома помещение.
При этом строительство нужно будет вести исключительно с подветренной стороны, так как в этом случае при возможном пожаре огонь не пересиниться на жилые строения. Что же касается размещения окон, то в бане они должны быть установлены на западной стороне здания, так как здесь больше солнца. Также имеет смысл поставить баню на берегу водоёма, если имеется такая возможность. Этим самым вы облегчите себе труд по её снабжению водой, и во время банных процедур вам будет очень приятно принять холодную ванну после парилки.
При этом необходимо будет её разместить так, чтобы она стояла на некоторой возвышенности. Делается это для того, чтобы обеспечить возможность стока вод во время весеннего паводка, тем самым предотвращается её возможное подтопление во время весеннего паводка. Кроме того существует и такая хитрость, как установка входной двери с южной стороны. В этом случае возле неё будет наметаться небольшое количество снега, в результате чего можно будет её легко открыть.
Однако существуют и запретные зоны, где строительство бани вести ни в коем случае нельзя. Это места рядом с участками соседей и улицей. Дело в том, что для этого потребуется получить специальное разрешение, а соседи далеко не всегда могут его дать. Кроме того стоит избегать строительства бань на слабых грунтах, так как сточные воды, вытекающие из бани, могут их размыть, в результате чего здание может дать трещины и даже разрушиться.
Если вам понравилась баня с летней кухней и террасой, проект её может подразумевать 2 варианта строительства: самостоятельно или же с привлечением профессиональных строителей.
Помывочное отделение в бане
Если баня просторная и вы располагаете достаточными средствами, то можно сделать более современный проект помывочного отделения с несколькими зонами — душевой кабиной, купелью, бассейном. При этом нужно ответственно подойти к расчетам отопления для больших объемов и подобрать оптимальную конструкцию печи (или использовать несколько отопительных приборов для разных зон).
Убранство традиционного моечного отсека в бане состоит из баков с горячей и холодной водой, лавочками и тазиками.
Рассматривая компактную планировку, уже на стадии проектирования необходимо определится, будет ли моечный отсек и парилка совмещенными, смежными либо в каждое из этих помещений из предбанника будет вести автономная дверь.
Примеры проектов
В зависимости от ваших предпочтений и возможностей вы можете подобрать схему для парилок с учетом размеров вашего участка. Ниже представлены схемы банных помещений разных размеров.
Маленькие
Несмотря на маленькое пространство, современные схемы планировок дают широкие возможности максимально эффективного использования пространства. Чаще всего прихожую и комнату отдыха не разделяют в маленьких планировках – это дает возможность поставить санузел. Внешний интерьер таких строений привлекателен и добавляет уют, прекрасно подходит для небольших компаний или семейного отдыха. Часто такие строения делают с открытыми верандами.
Средние
Средний размер помещения позволяет добавить раздельную комнату для отдыха и душевую с туалетом. Как вы видите, пространство используется максимально эффективно, есть красивая веранда. Парная и душевая комнаты смежные, что дает возможность использовать один резервуар с водой.
Большие
Под большими банями подразумеваются двухэтажные или одноэтажные постройки, где может быть спальная комната, бассейн и бильярдный стол. Такой вариант подходит для больших компаний и для любителей роскошного отдыха.
Одноэтажное большое помещение вмещает большую комнату отдыха с диванами, бассейн, отдельный санузел, кладовую и массажные комнаты. Такой банный комплекс включает в себя все необходимое, начиная с парилки и заканчивая спальной комнатой, прекрасный вариант для полноценного отдыха. По внешнему виду такие сооружения похожи на дом, где можно полноценно жить.
Обзор современного гостевого дома-бани смотрите в следующем видео.
Проекты
Традиционно, в бане должно быть две комнаты: предбанник и непосредственно парилка. Они могут быть объединены или быть двумя разными комнатами. Однако на этом варианты не заканчиваются. Как и при строительстве дома, существует огромное количество проектов, которые могут вдохновить вас.
Баня может быть пристроена к частному дому в городе или расположена на дачном участке. Может являться отдельным зданием или быть частью дома, его отдельной комнатой или, например, небольшим угловым помещением (наравне с ванной и санузлом).
Баня с бассейном считается целым банным комплексом. Построить его не так сложно, как кажется на первый взгляд. В продаже имеется огромное количество чаш под бассейны самых разных форм и размеров. Расположить бассейн можно в парной, обязательно отгородив его стеной от парилки, или присоединить к основному помещению бани в качестве ещё одной комнаты, оформить его стеклянными стенами или навесить сверху солидную крышу, или поликарбонатный козырёк. Главное – помните, что парилку и бассейн обязательно должна разделять стена, чтобы влажный теплый воздух и воздух комнатной температуры не конфликтовали.
В оформлении бассейна также нет каких-либо сильных ограничений. Вы можете оформить дно мозаичной плиткой, внутренней подсветкой или даже разместить там какие-нибудь водоросли.
Если вы относите себя к любителям всего нового и оригинального, советуем присмотреться к новинке – каскадному бассейну, который многие называют просто водопадом. Выглядит это так: благодаря замкнутой системе циркуляции, вода подаётся сверху вниз, затем по трубам снова поднимается вверх и так, водопадом, бесконечно падает вниз. Размеры этого бассейна будут не такими уж огромными, но выглядеть он будет эффектно, особенно если в качестве декора присмотреть камни или 3D-изображения с фотографиями морских пейзажей.
Пристроить каскадный бассейн к уже готовой бане не представляется возможным. Его следует планировать ещё на этапе проектирования, ведь он оказывает серьёзное влияние на водоснабжение, систему вентиляции, а также нагрузку на электросеть.
А вот если душа требует размаха, то двухэтажная баня будет лучшим вариантом. Зонирование в таком случае происходит следующим образом: на первом этаже парилка, моечная, котельная, при желании бассейн и хозяйственные помещения. На втором – жилые комнаты, комната отдыха, душевая, столовая, библиотека, бильярдная или бар.
Второй этаж можно смело назвать развлекательным, что особенно актуально, если вы привыкли звать гостей в баню и собираться здесь большими компаниями. Более того, зачастую из таких бань делают настоящие жилые дома или проводят здесь весь дачный период.
Определённую сложность в случае с двухэтажной баней может представить лестница. На самом деле, правильно её будет ставить в комнате отдыха или в раздевалке, дабы влага не попала в верхние помещения. Ни в коем случае не располагайте лестницу на террасе или улице. Не нужно также, чтобы она шла через балкон, ведь зимой подниматься по холоду будет не очень-то приятно.
Бани могут разительно отличаться по размеру: 5х5, 5х6, 4х7, 2х2, 6х5, 8х9, 2х2, 6х8, 8х8, 6х10 и так далее. В общем и целом, размер бани влияет только на то, какое количество человек там должно находиться одновременно, и сколько комнат вы хотите там иметь. Вы не обязаны строить свою баню по примеру общественной – небольшой, маленькой и узкой. Баня – это место отдыха, расслабления, и она должна быть комфортна именно для вас.
Канализация в бане
И теперь почти самое главное — это канализация. Время от времени вам придется сливать воду из вашего резервуара, так как она вам будет без надобности, либо придет время для ее смены.


А вот рассчитать подвод воды к центральной канализации, учесть все необходимые комплектующие, в числе которых трубы и клапаны, — это необходимо сделать своевременно. Еще во время проведения расчетов и создания проекта.
- Для сокращения трат вам придется установить качественную систему с очистными фильтрами.
- Она обойдется вам дорого, но впоследствии вы сэкономите намного больше денежных средств, так как нужда в смене воды для бассейна уменьшится до 1-2 раз в год.
- Плюс, если вы не будете добавлять химикаты в воду, то ее можно будет впоследствии использовать для полива растительности на дачном участке.









Какой бассейн подойдет лучше всего
Как правило, бассейны бывают трех видов: стационарные, гидромассажные и разборные.
- Стационарный бассейн можно считать долговечным бассейном, ведь в его основу закладывают железобетон.
- Их строят как внутри, так и снаружи помещения. Существенным минусом можно назвать то, что самостоятельно такую конструкцию не построить.
- Вам в любом случае понадобится нанимать рабочих и специальную технику.
- Вам предстоит вырыть котлован, озаботиться заливкой основы для фундамента.
- В качестве отделочного материала чаще всего выступает кафель в виде мозаики.
- Размеры и форму выбираете сами, ориентируясь на свои эстетические предпочтения.

Гидромассажные бассейны, как уже понятно из названия, обязательно оснащаются специальными приборами. В них хорошо полежать, расслабиться, получить массаж от струй воды. Едва ли они подойдут для плавания. Чаще всего они довольно небольших размеров. Вот их хорошо устанавливать внутри помещений.

Разборные резервуары считаются самым подходящим вариантом для бань. Их легко собрать. Если возникает необходимость, их всегда можно демонтировать. Цена относительно небольшая. Но прочность также уступает двум предыдущим типам.

Популярные проекты
Теперь, когда подошло время выбрать проект, обратитесь за помощью к квалифицированным специалистам. Они помогут вам с расчетами, подскажут все необходимые для приобретения материалы и прочее.










Последняя включает в себя такие моменты, как:
- Вариации подключения коммуникаций.
- Подбор труб с нужным разрешением.
- Списки оборудования.
- Способы, как очистить и заменить воду. И многое другое.

Что касается самих проектов, самые популярные:
- Баня с бассейном и комнатой отдыха.
- Баня и бассейн под одной крышей.
- Баня, где бассейн находится на улице.

Особенности планировки бани 4 на 4
Внешний вид и внутреннее расположение комнат бани 4 х 4 можно планировать по-разному. Располагаться здание может на фундаменте или специальных бетонных сваях с воздушной подушкой под домом.


В небольшой бане размером 4 на 4 достаточно места для размещения всех необходимых комнат. Это:
- Предбанник;
- Моечная и санузел (часто их совмещают);
- Парная.









Для нагрева подойдёт одна, но качественная, мощная печь. Её можно расположить между комнатами, поскольку необходимо обогревать парную и моечную. Топочная дверца специально предназначенного для бани отопительного агрегата выводится в предбанник.






Большая часть печки должна быть в парилке для достижения высокой температуры. В предбаннике особое тепло не требуется, но это удобное место для хранения, подсушивания дров возле печной стены, их загрузки в печь.

Из предбанника предусматривают выход на улицу или в дополнительный небольшой неотапливаемый коридор-тамбур. Тамбур очень удобен в зимнее время года.

















Плюсы и минусы планировки
Все тонкости планировки стоит предусмотреть заранее, чтобы потом не возникало вопросов. Если на начальном этапе определиться, что баня будет с комнатой отдыха, то минусов у нее быть не должно, а плюсов сколько угодно. В бане всегда должны присутствовать парилка, моечная и предбанник. Все остальное уже зависит от площади, которая отведена под строительство здания. Плюсы тогда очевидны. Комната отдыха позволяет:
- полноценно отдохнуть после банных процедур;
- принять гостей и хорошо провести время;
- при необходимости комната отдыха в бане может временно послужить гостевой для задержавшихся друзей;
- в комнате можно хранить необходимые вещи для бани в специальном шкафчике;
- можно с помощью зонирования найти уголок, где можно приготовить несложные блюда.


Минусом может стать и слишком маленькая комната, но в этом случае нужно думать, какому помещению выделить больше места – парилке, моечной или комнате отдыха. Это зависит от того, сколько времени предстоит проводить в бане, сколько человек будет ею пользоваться одновременно.

Конечно, плюсами любой планировки станет, если к основным помещениям можно добавить не только комнату отдыха, но и отдельную кухню, спальни, бильярдную или, возможно, бассейн. Но все это зависит от возможностей хозяев участка.

Бани из кирпича с кухней или барбекю
Проект с кухней и верандойПроект с застекленной верандой
Печку, кстати, можно тоже построить из кирпича, только обязательно керамического. Для возведения стен бани может использоваться и силикатный, так как кладка изнутри все равно тщательно изолируется.
Проект 3 на 6 с верандой
В большинстве проектов бань со всевозможными пристройками предусматривается фундамент в виде плитного монолита.
- Во-первых, он универсален и может заливаться на разных грунтах (за исключением слабых неустойчивых, когда требуются сваи).
- Во-вторых, плита очень удобна, не придётся заливать ни полы в самой бане, ни на уличной зоне, где располагается терраса. Не придётся так же просчитывать фундамент под барбекю или стационарный мангал.
- В зависимости от проекта, стены могут возводиться либо из пустотелого кирпича по технологии колодцевой кладки, либо из бетонных блоков с внешней облицовкой кирпичом (с отделкой цоколя камнем).
- Утепление фасада производится минеральной ватой, которая единственная из всех утеплителей обладает высокой степенью паропроницаемости.
Дом-баня с верандой
Просто нужно сделать так, чтобы у него была возможность выйти наружу. Поэтому и утеплитель, и мембрана поверх него, должны быть паропроницаемыми — но это имеет смысл только при наличии технологического зазора!
Принцип движения пара в вентилируемой наружной стене
В некоторых проектах в качестве наружной отделки предусматривается штукатурка по утеплителю (тёплые штукатурные системы)
Крыша у кирпичной бани обычно двухскатная или вальмовая, но может быть и односкатная, с покрытием из битумной или металлической черепицы (о строительстве крыши для бани узнайте из нашей статьи).
Планировка
Планировка, как и в любом другом случае, зависит от размеров строения в плане и количества этажей. Рассмотрим вариант гостевого дома с мансардой размером 8*9,37 м:
- Внизу предусмотрена просторная открытая веранда к бане, которую при желании можно и застеклить, либо установить барбекю.
- Комната отдыха в этой бане не уступает по площади полноценной гостиной, в которой есть и камин (соответственно, подойдет для зимнего использования), и небольшой бар, и телевизионная зона.
- Здесь же находится просторный санузел, хоть и без ванны, и, собственно, купальные помещения (моечная и парилка).
Баня с комнатой отдыха и верандой
В мансарде располагается одна большая комната с площадью 28,5 м2, которую можно разделить на две спальни. На верхнем этаже есть встроенный балкон, что позволяет ночевавшему в комнате человеку выйти поутру вдохнуть свежий воздух. Всё удобно и ориентировано на комфортный отдых.
Планировка с верандой, мансардный этаж
Проекты бань с большой верандой могут предусматривать и одноэтажную застройку. А почему бы и нет, если участок позволяет? Да и потом, баня вполне может обойтись и без спален, а небольшой комнаты отдыха хозяевам вполне может быть достаточно.
На примере снизу в бане нет туалетной комнаты. Если рядом с ней находится жилой дом, то ничего страшного в этом нет — в крайнем случае, «удобства» придётся предусмотреть на улице. Но когда туалет есть — а его ведь можно совместить с моечным помещением, это гораздо комфортнее.
План 6х4 с верандой
Именно такая планировка бани 6х8 с верандой и туалетом и представлена ниже.
Баня с верандой: план 6х8
Конечно, подобные планировки можно предусмотреть в любом другом доме, а не только кирпичном.
Одноэтажные бани
Баня с большой жилой комнатой с мини-кухней
На эскизе выше вы видите экспликацию помещений одноэтажной бани с достаточно большой жилой комнатой (20м2), совмещенной с мини-кухней. По сути любая баня, имеющая хотя бы одну комнату отдыха уже может считаться жилой, например этого достаточно будет для проживания на дачном участке в летний период для 1-2 человек.
Но для наибольшего комфорта, необходимо чтобы в такой бане для проживания имелся:
- душ
- туалет
- комната отдыха со спальными местами (диван-кровать например)
- кухня (мини-кухня / кухонный модуль)
- система отопления (для круглогодичного проживания)
Таким образом, вы получаете примерный метраж однокомнатной квартиры /студии + сауна.
Баня с жилой комнатой 14,8 м2 и террасой
Если одного помещения для проживания вам недостаточно, то можно рассчитать в здании бани еще одну комнату.




![Проект бани с бассейном [100 фото], различные планировки](http://lineproekt.ru/wp-content/uploads/3/8/e/38eea1c07735b7564b18fc5d3ac55aa7.jpeg)























