Качели на веревках
Это, пожалуй, самый простой вариант создания конструкции. Отлично подойдет для детей разного возраста. Для создания потребуются только сидушка и подвес.

В качестве сиденья можно использовать доску длиной до 50 см и шириной около 15 см. При этом толщина доски должна быть не меньше 3 см
Сидушку очень важно обработать – отшлифовать, сгладить все неровности и острые углы
Процесс изготовления прост:
- По углам доски нужно высверлить отверстия, куда будет продеваться подвес.
- Веревка обязательно должна быть толстой. Можно даже использовать канат. Продев его в отверстия, нужно закрепить тугим узлом.
Такие качели можно применять и для детей, и для взрослых. Но в последнем случае для крепления лучше задействовать металлический трос и рым болт.
Изготовление садовых качелей из профильной трубы
Наилучшим и при этом простым вариантом являются подвесные качели, для монтажа которых нужно не более ½ часа. Для того, чтобы защищать сидение от грязи и влаги, можно изготовить навес. Именно так сидение станет максимально комфортным. Для детских качелей довольно сложно делать навесы своими руками, применяя при этом подручные материалы – текстиль, дерево или даже большой кусок брезента. Еще можно применять огромные листы сотового поликарбоната. Так как этот материал прозрачный, то под навесом не будет темно. До того, как начать изготовление качелей для детей, стоит заранее купить или даже арендовать все нужные инструменты:
- Гаечные ключи.
- Саморезы.
- Угловую шлифовальную машинку.
Размеры
Нарезать трубы из металла лучше всего при помощи угловой шлифовальной машинки, а после на заготовки наносят размету и просверливают все точки на конструкции до того, как собрать ее (это нужно, чтобы не допустить ошибок). Скрепление элементов выполняется попарно, для начала один со вторым, а после и третий. Как итог, должно получится 2 одинаковые по размеру вставки. Требуется одинакового отрезать все острые концы, аккурат по линейке, чтобы получилось сделать идеально ровную площадку для опоры. Предварительная подготовка шаблона заранее упрощает задачу. После первичной примерки элементы по очереди приваривают друг к другу, и тогда получится прямоугольная рама. Верхняя часть будет закреплена в последнюю очередь.

Подвесные конструкции
Можно сделать садовые качели из дерева. При сборочном процессе качели после нарезки всех элементов стоит помнить о том, что качели должны стоять устойчиво на почве в горизонтальном виде. Чтобы подвешивать скамью, стоит применять балку, которая стоит на земле, т.е. в заранее подготовленном основании
Стоит уделить особое внимание сборочному процессу сидения, так как от того, насколько хорошим оно получится, будет зависеть удобство
Это крайне важно, когда делают детские качели. Из уголка стали делают основание под каркас и после проверяют, чтобы спинка сиденья была размещена под углом 120 градусов
В любом случае, будут ли качели взрослыми или детскими, стоит проследить за тем, чтобы на спинке не было острого выступа, а также неудобных крепежей
Из уголка стали делают основание под каркас и после проверяют, чтобы спинка сиденья была размещена под углом 120 градусов. В любом случае, будут ли качели взрослыми или детскими, стоит проследить за тем, чтобы на спинке не было острого выступа, а также неудобных крепежей.
Как сделать козырек
Если вы решили поставить на территории дачного участка качели, вовсе необязательно делать козырек, но он дает возможность ставить конструкцию на открытом пространстве даже под дождем. Если качели делают для детей, то верхняя часть крайне важна – они защищают ребенка, который играет на качели от дождя и палящих солнечных лучей. Последним шагом в изготовлении будет крепление поликарбонатной крыши. Чтобы придавать таким материалам идеальную форму, применяют саморезы. Для защиты листов козырька с торца стоит обработать все при помощи особого профиля. Если грунт, где стоят качели, довольно рыхлая, для фиксации стоит применять хомуты. Их вставляют в грунт на дистанции не менее ½ метра и надежно фиксируют. Есть множество вариантов для изготовления качелей собственноручно, но до того, как начать работы, стоит получить определенные навыки или пригласить мастера.
Плюсы и минусы дачных качелей из бруса
Брус при изготовлении качелей чаще всего пользуется спросом.

Популярность объясняется многими преимуществами:
- Для конструкции из бруса проще всего сделать чертежи или найти подходящие схемы в Интернете.
- Готовый брус практически не требует дополнительной обработки. Строительный материал необходимо лишь распилить на заготовки нужной длины, соответствующей размерам чертежа.
- Качели красиво выглядят, украшают участок. Прочный каркас выдерживает большие нагрузки.
- Из бруса собирают своими руками аттракцион для взрослых и детей. Чертеж используют один и тот же, только различается сечение строительного материала.
Даже на фото качели из бруса своими руками смотрятся презентабельно. Однако у деревянного аттракциона есть свои минусы. Основным недостатком считается слабая устойчивость древесины к влаге, негативным погодным явлениям. Со временем брус уничтожает плесень. Древесина трескается на солнце, гниет в сырости.
Подвешиваем качели. Выбираем один из двух вариантов опор
Для этого проекта мы решили предложить на выбор одновременно два варианта подвески. Первая – это простая переносная деревянная полка. При всей простоте конструкция очень надежная и устойчивая. И, конечно же, главное его достоинство – мобильность. Сняв сиденье с цепей, два человека могут в любой момент переместить качели на новое место.
Начните с опор (A). Отрежьте четыре доски 50х150х1200 мм. Закруглите верхние углы, как показано на фото.
Для изготовления опорных столбов (Б) используйте брус размером 100х100 мм, этого будет достаточно, чтобы обеспечить конструкции необходимую жесткость и надежность. Длина стоек 1900 мм.
Из этого же бруса вырежьте четыре заготовки прямоугольной формы для стоек (С) длиной 460 мм. Сделайте фаску на концах под углом 45 °, как показано на схеме.
Сделайте четыре верхних распорки (E): 50x100x760 мм.
Из бруса 100х100 вырежьте продольную балку (D). Длина – 2400 мм. На концах балки, в месте пересечения со стойками, сделайте два одинаковых выреза шириной 100 мм.
Разметьте, предварительно просверлите направляющие отверстия и соберите стойку с помощью саморезов или болтов 75 мм. Сама конструкция выглядит очень объемно, но с подвесным сиденьем приобретает совершенно гармоничный вид.
Качели с перголой
Второй вариант проекта – качели с опорой в виде перголы. Такое решение более декоративное и изящное. Громоздкие балки здесь не используются, а перекрытие продольных и поперечных балок не только добавляет привлекательности и создает легкую тень, но и укрепляет конструкцию.
При этом собрать такую опору значительно сложнее, чем первый вариант. Здесь сложнее всего зацементировать столбы и выровнять конструкцию. Но тут все относительно просто: прямой разрез деталей, несложные соединения и сборка под прямым углом.
Начнем со столбов. Вырежьте четыре опоры длиной 2700 мм из бруса 100×100 мм. После установки они будут закопаны в землю на 600 мм, а высота конструкции составит 2,1 м.
Вырежьте из доски 50х150 мм четыре продольных балки длиной 2900 мм. По краям сделайте полукруглые вырезы – здесь вам очень поможет пазл. Этот маленький штрих – традиционный атрибут классической средиземноморской беседки.
Совет! С помощью самодельной формы нарисуйте аккуратную дугу. Согните тонкую резинку так, чтобы она проходила через отмеченные на шаблоне точки. Закрепите шаблон струбцинами и проведите карандашную линию.
Сухой монтаж стоек и продольных балок на ровной поверхности. Закрепите детали стяжками, проверьте точность монтажа угольником и просверлите по два сквозных отверстия на каждом узле. Закрепите стропила болтами с шайбами.
Вырежьте из доски 50х150 мм шесть прямоугольных заготовок длиной 1525 мм – это будут короткие перекладины. Для каждого куска сделайте скругления на концах, используя тот же шаблон, что и выше. По размерам, указанным на чертеже, сделайте отметку под вырезами, в месте пересечения детали с поперечинами. Для создания чистых и чистых надрезов сделайте серию поперечных надрезов на детали, выберите деталь из лома широким зубилом и очистите стенки канавки.
Цементирование столбов рекомендуется начинать после полной сборки подшипниковых групп и установки двух концевых поперечин. В таком виде пергола приобретет минимальную жесткость, но при этом ее можно будет свободно выравнивать в горизонтальной и вертикальной плоскостях. Вероятность ошибок и перекосов в этом случае намного ниже, чем если бы столбы устанавливались отдельно, а конструкция собиралась на вес. Установка полусобранных опор для перголы – это работа вчетвером, поэтому заранее подумайте, кому помочь.
На схеме показано, как правильно цементировать столбы качелей. В подготовленные лунки насыпается немного гравия. После этого в них вставляются опоры и с помощью уровня выравнивается полусобранная конструкция в горизонтальной и вертикальной плоскостях. После точного центрирования столбы фиксируются колышками (в колодцах) или подпираются подкосами. Проверив все несколько раз уровнем и угольником, можно заливать бетон
После этого важно сделать перерыв и дождаться, пока бетон наберет полную прочность
Вы хотите придать своему саду или даче средиземноморский колорит и создать тенистое место для беззаботного отдыха? В этом поможет традиционная деревянная беседка. Здесь мы покажем вам, как сделать такой навес.
Когда бетон хорошо затвердеет, завершите укладку четырех оставшихся перемычек по весу.
Теперь осталось починить подвеску, и работа сделана. В качестве крепежа можно использовать рым-болты, приспособить подъемные скобы или купить готовые крючки.
Пергола готова! Осталось пригласить помощника, который поможет повесить сиденье на цепочку.
Садовых качели из металла
Конструкции из профилированных труб, листового гнутого железа, ковки — надежные и прочные, с длительным сроком службы. Соорудить качалку можно самостоятельно, в том числе из вторичного материала.
Основные материалы, которые используют для опорной и несущей перекладин:
- металлический профиль;
- балки из стали;
- трубы различного сечения;
- раскроенный листовой металл;
- алюминиевый профиль.
Необходимые материалы для работы
Сидения скамейки обычно изготавливают из дерева, металл разогревается на солнце. Выделяют несколько основных видов:
- качели–скамейка для нескольких человек;
- детские;
- переносные подвесные;
- модели на пружинной подвеске.
Второй вариант подходит на случай, когда конструкцию планируют делать из подсобного материала, который есть в хозяйстве.
Есть три вида изделий для отдыха, форма их напоминает буквы А, Л, П. Подобный конструктив оптимальный, с точки зрения надёжной устойчивости.
К основным достоинствам металлоконструкций относятся:
- надёжность, прочность;
- длительный срок службы;
- практичность, за ними легко ухаживать;
- устойчивость перепадам температур, ультрафиолетовому излучению;
- хорошо выдерживают ветровые нагрузки;
- органично вписываются в ландшафтный дизайн.
Чертежи металлических качелей
Это интересно: Пристроенная беседка к дому (48 фото) — как своими руками пристроить просто и красиво, преимущества пристройки и варианты под одной крышей с домом
Как правильно выбрать?
Для начала требуется определиться с главными вопросами:
- как часто вы намереваетесь использовать конструкцию;
- кто будет пользоваться;
- какая нагрузка будет при использовании;
- где будет располагаться.
Для семьи с детьми или большой компании подойдут качели-диваны, они помогут избежать конфликта и создадут комфортные условия. Длина сидения является оптимальной до двух метров. В этот размер с легкостью поместятся три взрослых человека и пару детей.
Если же качели делаются только для детей, сиденья будут небольшого размера и следует предусмотреть средства безопасности от выпадания. Чем больше вес, тем более надежной должна быть конструкция. Трехместные качели рассчитаны на вес до 200 килограммов.
Качели из металла: как сделать самому
Чтобы самостоятельно сделать металлические качели, нужно запастись такими материалами и инструментами:
- болгаркой;
- длинной трубой (прекрасное основание для крепления сидения);
- досками для создания скамейки;
- краской желаемого цвета;
- крепежными элементами;
- рамой с четырьмя углами. Она станет несущей в готовой конструкции;
- составными частями для цементного раствора;
- треугольной боковиной. Она должна быть сварена из нескольких перекладин;
- шлифовальной машинкой.
Теперь остается следовать заблаговременно продуманной последовательности действий. Процедура монтирования дачных качелей собственноручно проходит в несколько стадий:
- Болгаркой требуется разрезать материал на отдельные элементы. Для удобства необходимо выбрать желаемый чертеж или схему и делать разрезы соответственно намеченным заготовкам.
- Обработать доски наждачной бумагой или шлифовальной машинкой и сложить из них сиденье.
- Все детали требуется объединить посредством крепежных элементов или сварки.
- Вырыть четыре небольшие ямы, установить опоры и залить бетоном.
- Покрасить в желаемый цвет.
В конечном итоге получатся прекрасные дачные качели
Важно подобрать для себя подходящую схему. Она поможет не ошибиться с габаритами составных деталей
Виды самодельных качелей из бруса
Изготовление качели из металла для дачи

Чтобы сделать качели из металла своими руками для дачи, берут уголок, круглые трубы или тавры. Мастера предпочитают профильную трубу, как прочный и надежный материал.


Применяют:
- профиль квадратный или прямоугольный для стоек, распорок;
- овальный для гнутых элементов;
- плоский – для вспомогательных деталей.
По фиксации различают стационарные и переносные изделия. В первом случае устройства ставят на бетонированные стойки, во втором – опоры крепят к раме, заглубленной в грунт. Переносные железные качели удобны, если на зиму их убирают в дом.
Конструкцию выбирают в виде букв «А», «П», для переносных изделий применяют Л-образные опоры. Сиденья подвешивают на хомуты, анкерные болты или шариковые подшипники. Детали для навешивания проверяют на прочность, смазывают.
Необходимый инструмент и расходные материалы
Чтобы соорудить металлические уличные качели для дачи своими руками, пригодятся:
- сварочный аппарат;
- электроды 2,6 мм;
- профильные трубы шириной стенки 40-70 мм, толщиной 1-2 мм для сооружения стоек, перекладины;
- брус деревянный для лавочки 30х30 мм (сечение может быть больше или меньше);
- тросы, цепи;
- 6 рым-болтов с шайбами, гайками для фиксации;
- краска, лак.
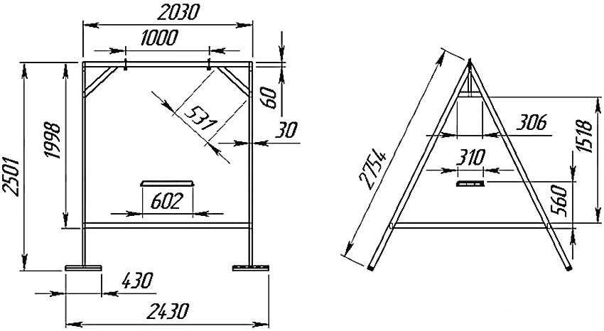
Чертежи качелей из металла
Продумывая, как сделать сварные качели, исходят из параметров ширины одного посадочного места – не менее 0,5 м на человека. Высота на выбор хозяина, а между опорами и скамейкой оставляют расстояние в 35 см для веревочного крепления, 25 см для цепного.
Простой чертеж выглядит так:

Пошаговая инструкция по сборке
Как сделать сварную конструкцию А-образной формы:
- Нарезают 4 трубы по 2,5 м для стоек. Перекладины делают по 2,1 м.
- Обрезают края трубы под углом в 30 градусов, сваривают попарно в форме равнобедренного треугольника.
- Откладывают от вершины 2 м, приваривают горизонтальную перемычку длиной в 1,038 м.
- К вершинам стоек, разведенных на 2 м, приваривают горизонтальную перекладину так, чтобы концы выступали с обеих сторон на 5 см.
- Нарезают брус для скамейки, ошкуривают, лакируют, сушат.
- Деревянный брус крепят к каркасу сиденья. Фиксация на болты с шагом от 2 см.
- Сиденье навешивают на перекладину. Крепят на рым-болты, предварительно просверлив в перекладине отверстия.

Чтобы поставить взрослые или детские качели для дачи своими руками, делают так:
- роют 4 ямы глубиной до 50 см;
- делают бетонную смесь из готового порошка или цемента, воды, песка (1:2:3);
- на дно ям насыпают песок слоем до 10 см;
- ставят опоры;
- пространство между опорами и грунтом засыпают камнями и заливают бетоном;
- дают бетону высохнуть минимум 3-4 дня.
После просушки раствора конструкцию тестируют, окрашивают.
Изготовление навеса для летней качели
Полог или навес защитит от солнца, дождя. Самый простой вариант – натянуть на конструкцию тканый материал в виде маркизы. Такие применяют, устанавливая диван качели для дачи. Рейки держат плотную ткань, не давая ей сместиться.
Второй вариант – лист поликарбоната с фиксацией на металлопрофиль. Форму определяют боковые части навеса – классическая в виде пирамиды или полукруглая. Для второго вариант профиль гнут трубогибом.
Для сооружения навеса поперечные планки профиля фиксируют к основным балкам сваркой или болтами. Затем на деревянную раму натягивают полотно, фиксируют лист поликарбоната (на прессшайбы, болты). В конструкции верху качелей делают отверстия, фиксируют навес.
Плюсы и минусы изделий
В первую очередь разберем положительные стороны самодельной продукции:
- конструкции можно сделать неповторимыми, что добавит гармонии и уюта вашему дачному участку,
- изделие ручной работы стоит намного дешевле, чем в магазине.
- металлические качели долговечны,
Однако есть и минусы:
- металлический каркас достаточно жесткий, поэтому стоит опасаться возможных травм и ушибов;
- во избежание коррозии требуется специальная обработка материала.
Он имеет следующие преимущества:
Это основные достоинства металлической профильной трубы, но идеальных материалов не бывает, поэтому есть и недостатки:
- сложно складывать;
- в обязательном порядке использовать лакокрасочные материалы или оцинковку; без этого черный металл подвержен ржавчине и разрушению.
Материалы и инструменты для изготовления
Выбор материала зависит от конструкции и разновидности сооружения. Самодельные качели изготавливают из досок, брусьев, европаллет, бревен. Последние нужно использовать прочные, довольно твердые. Хорошо подходят хвойные виды древесины, такие как сосна, лиственница.
Набор необходимых инструментов:
- бензопила;
- электрический лобзик;
- рубанок;
- сверла с дрелью;
- шуруповерт;
- винты с кольцом;
- молоток;
- рым-болты.
Концы бревен, которые предстоит закапывать, необходимо защитить от гниения, например, смолением. В качестве подвеса используются цепи либо прочные канаты с металлическим сердечником. Из досок изготавливаются не только отличные сиденья. При должной сноровке получится создать полноценный А-каркас из сдвоенного полотна, что обеспечит хорошую прочность и надежность конструкции. Сиденье может быть в виде лавки, кресла, диванчика с подлокотниками. Помимо стандартного набора молотков, гвоздей, шуруповерта понадобится также наждак. Лак для защиты древесины от разрушения сделает ее более безопасной и гладкой на ощупь.
Качели из бруса устойчивы, а подгонка деталей проходит легче благодаря его правильной форме. Для изготовления применяют либо оцилиндрованный, либо нецилиндрованный строительный материал. Стандартное сечение 40 х 70 мм позволит создать вариант с хорошей несущей способностью и сиденьем-диванчиком. Материал необходимо отшлифовать, обработать фунгицидными и антисептическими растворами. К базовому набору инструментов добавляются металлические скобы, такелажные крепления, цепи.
Подвесные конструкции из европаллет – экономичный способ создать уютное место для отдыха. Достаточно выбрать деревянный поддон, обработать его, застелить матрасом, пледом, подушками и подвесить на канатах к потолку беседки или навеса. Получается дачный вариант качели-кровати. Можно чуть усложнить процесс, добавив низкие боковины, изголовье, либо преобразовать паллет в небольшой диван на цепях-подвесах.
Для создания потребуются такие вспомогательные материалы и инструменты как:
- молоток;
- гаечные ключи;
- металлические уголки;
- сверла по дереву;
- электрический лобзик.
После определения размеров, выбора конструкции и материалов для будущих качелей нужно подобрать чертеж или создать его самостоятельно. Он должен быть тщательно проработан: ошибки, закравшиеся в расчеты, сделанные наспех, приводят к негативным последствиям. Безопасность должна быть на первом месте.

Бревно

Брус

Европаллеты

Инструменты
ЧЕТЫРЕХМЕСТНЫЕ садовые качели – из двух встречных скамеек.
Вот модель четырехместных качелей – где каждая скамейка это независимая качеля. Она крепится на свою отдельную балку и может раскачиваться отдельно от второй скамейки-качелей.

Но, честно говоря, это немного неудобно. Ведь тогда одна скамейка БУДЕТ СТУКАТЬСЯ о вторую – при раскачивании. Получаются какие то травмоопасные качели-беседка для дачи.
Поэтому модель надо усовершенствовать… И добавить пол-стяжку, который будет состыковывать обе скамейки в единую конструкцию.
И в итоге мы получаем…
Обзор моделей
Выбор модели качелей для сада зависит от личных предпочтений. Есть несколько наиболее востребованных вариантов
У каждого из них имеются свои особенности, на которые стоит обратить внимание на этапе планирования:
- Гамак. Комфортные изделия для отдыха производятся из непромокаемых полотен. Плюсы: компактные параметры, простота создания и монтажа, мобильность. Минусы: риск выпадения, низкая прочность.
- Скамья. Уличные качели изготавливаются из дерева, обычно рассчитаны на нескольких человек. Плюсы: универсальность, простота создания своими руками. Минусы: недостаточный уровень безопасности.
- Стульчик. Компактные конструкции, подходят для самых маленьких детей. Плюсы: мобильность, отсутствие риска падения. Минусы: сиденье рассчитано только на одного человека.
- Балансиры. Состоят из доски, основания и держателей. Плюсы: подходят для двоих детей. Минусы: для установки потребуется много свободного места.
- Лодочки. Подвесные парные качели для дома, обычно производятся из металла. Плюсы: компактные габариты. Минусы: короткий срок службы, если конструкция выполняется из пластика.
В домашних условиях чаще используются подвесные модели, которые крепят к любой подходящей опоре. Проще всего изготовить самостоятельно качели из ткани в форме гамака. Для их производства понадобятся канат и прочное полотно, которое будет выполнять функцию сиденья.
Гамак
Скамья
Стульчик
Балансиры
Лодочки
Качели для дачи своими руками: фото и классификация изделий
Традиционными материалами для изготовления уличных качелей для дачи своими руками являются металл и древесина. В целях улучшения надежности и внешних характеристик можно совместить данные материалы, а также частично украсить металлическую конструкцию декоративной ковкой.
Яркие качели-кокон, подвешенные к ветке дерева
Полезный совет! Для изготовления сиденья могут быть использованы любые подручные материалы, которые могут остаться на участке после строительства дома или проведения ремонтных работ.
Для строительства можно использовать:
- брусья;
- пластик;
- прочный канат;
- металлические трубы;
- старые кресла или стулья, с которых необходимо предварительно удалить ножки
Комфортные качели подойдут для сна на свежем воздухе или чтения
Владельцы автомобилей могут пустить в ход старые автомобильные покрышки. Они отлично будут сочетаться с клумбами, изготовленными из аналогичного материала.
Классификация качелей для дачи своими руками
Существует большое количество оригинальных и удобных качелей, способных украсить ландшафт любого дачного участка.
Условно их можно разбить на три большие категории:
мобильные – изделия имеют облегченную переносную конструкцию, благодаря чему качели можно перемещать по участку в любое удобное место, например, в дом, на веранду, в беседку или под навес во время дождя;
Мобильный вариант качелей с основой из металла
семейные – изделия с массивной и увесистой конструкцией. По своему устройству они напоминают скамейки без ножек с большой и высокой спинкой. За счет больших габаритов на сиденье может уместиться вся семья. Чтобы эксплуатация подобных качелей была безопасной, их надежно закрепляют на раме П-образной формы. В качестве фиксаторов используются прочные тросы или толстые цепи. Если организовать над качелями крышу или тентовый навес, ими можно пользоваться даже под дождем;
Уютные качели, расположенные на открытой террасе
детские – особая категория изделий, как правило, имеющих форму лодочек или подвесных кресел. К конструкциям выдвигаются особые требования в отношении каркаса, который должен соответствовать всем нормам безопасности. Совсем маленькие дети могут пользоваться качелями только в присутствии взрослых и при применении специальных ремней. С их помощью малыш фиксируется на сидении и потому не сможет выпасть.
Детские качели с металлическим каркасом, покрашенные в яркие цвета
Разновидности и фото качелей на даче своими руками
Качели могут быть классифицированы и по другим признакам. Различают следующие виды изделий по типу конструкции:
гамачные – подвешиваются на перекладину из металла. В качестве заменителя перекладины может служить дерево с толстой и прямой нижней веткой. Во время использования такой конструкции у человека создается впечатление будто он парит над землей. Подобные качели пользуются большим спросом у тех, кто увлекается чтением книг;
Качели-гамак – отличный вариант для релаксации и любования природой
Обратите внимание! Гамачные изделия, при условии соблюдения технологии изготовления, способны выдерживать весовую нагрузку до 200 кг. одиночные – изделия с различными видами конструкций, не нуждающиеся в установке дополнительных перекладин. Эти качели характеризуются быстрой системой монтажа, при этом они могут устанавливаться в любом месте
Для изготовления применяются самые разные материалы;
Эти качели характеризуются быстрой системой монтажа, при этом они могут устанавливаться в любом месте. Для изготовления применяются самые разные материалы;
одиночные – изделия с различными видами конструкций, не нуждающиеся в установке дополнительных перекладин. Эти качели характеризуются быстрой системой монтажа, при этом они могут устанавливаться в любом месте. Для изготовления применяются самые разные материалы;
Красивые подвесные качели в саду частного дома
подвесные – конструкции представляют собой сиденье, подвешиваемое на несколько веревок или цепей. Веревки крепятся по бокам. Благодаря применению различных материалов, которые позволяют сделать изделие прочным, комфортным и легким, качели подвесного типа могут иметь различную форму и размеры;
Уютные подвесные качели из ткани, созданные своими руками
шезлонги – изделия могут вместить семью, состоящую из двух взрослых и одного ребенка. Качели обладают особой конструкцией, которая предполагает фиксацию в единственной точке крепления, что позволяет устанавливать их в комнате. Материалом для изготовления служит специальный сплав металлов. Несмотря на кажущуюся воздушность, эти изделия очень прочны.
Большие семейные качели с металлическим каркасом
Плюсы и минусы самодельных беседок-качелей для дачи
Несмотря на сложность изготовления, конструкция обладает неоспоримыми преимуществами:
- Возможность комфортного отдыха при любой погоде. Крыша защитит от солнца и дождя.
- Многофункциональность конструкции. В беседке можно поставить не одну, а две или три скамейки. Качели обеспечат комплексное развлечение небольшой компании. Если между скамейками установить столик, беседка станет отличным местом для организации пикника.
- Не ограничивает отдых людей любого возраста. Качели под крышей удобны пожилым и молодым людям, а также детям.

Единственным минусом является сложность конструкции. Чтобы собрать беседку-качели, потребуются чертежи, много материалов, навыки столярного или сварочного дела. Строительство обойдется дороже, чем обычный аттракцион для катания под открытым небом.
Качели из металла своими руками
Конструкция у них точно такая же. Материал другой, и способ его крепления. Это — сварка. Тем, кто знаком со сварочными инверторами, не составит труда сварить нечто подобное. А для вдохновения фотоотчет.
Ниже есть чертеж этой качели с размерами. Требуются некоторые пояснения. На рисунке имеется приваренная по периметру труба (эта плоскость заштрихована). Она закопана и потому на фото не видна. Была сделана для того, чтобы повысить устойчивость: массы у друзей немалые. По той же причине наварены на торцы стоек пластины металла. Установку усложнили, но стоят качели намертво.

Чертеж качели из профильной трубы с размерами
Для изготовления ушло 22 метра профильной трубы 50*50 мм, для сиденья 25*25 мм — 10 мм, доски 2000*120*18 — 7 шт и остальное — крепеж, краска, антиржавчина.
Есть еще один способ крепления качели к перекладине. Он на фото.

Способ сделать крепление металлической качели к перекладине
Никто так не сможет объяснить, как автор произведения. Как сделать качели своими руками из металла смотрите в видео.
Оригинальной формы качели из профильной трубы — стойки нелинейные, а изогнутые. Такое с деревом сделать если и возможно, то только мастеру.
Несколько фото-идей от авторов и владельцев подобных конструкций.
Из чего можно сделать сиденье?
Основа качелей гнездо – это сиденье. Оно имеет форму круглой рамы, обтянутой веревкой. В качестве рамы можно взять готовые гимнастические обручи, которые продаются в магазине. Они могут быть разных диаметров и изготовлены из различных материалов (алюминиевые и пластиковые). Для прочности основы соединять вместе можно сразу два обруча. Такое количество обручей повышает прочность конструкции. Чтобы она смогла выдержать вес ребенка младшего возраста.
Для детей постарше и взрослых, раму можно сделать самостоятельно. Для этого хорошо подходит полиэтиленовая (ПНД) труба черного цвета диаметром 32 мм. Она легко соединяется в круг. Толщину стенки выбирайте от 3 мм, что точно обеспечит прочность конструкции.
Круглая рама, выполненная из куска стальной трубы, тоже будет прочной. Однако согнуть трубу в круг в домашних условиях будет проблематично. Придется обращаться за помощью. Не стоит брать слишком толстый металл.
Вариант рамы из ПНД трубы по праву считается самым удачным. Вот его основные преимущества:
- Можно выбрать любой диаметр круга.
- Плавно согнуть трубу возможно самостоятельно в домашних условиях.
- Прочность. Выдержит вес как ребенка, так и взрослого.
- Труба продается в любом строительном магазине.






























